Taos

Affordable

Homeownership

Pilot Project

TAHP Executive Summary

Project Objective

To address the housing crises in Taos County-and beyond-by offering four

affordable, sustainable homeownership opportunities below market value, with

full transparency of expenditures and integrated public education.

Project Overview

• Location: Avenida De Veronica, El Prado, NM (4 subdivided plots: 1.06-1.36

acres)

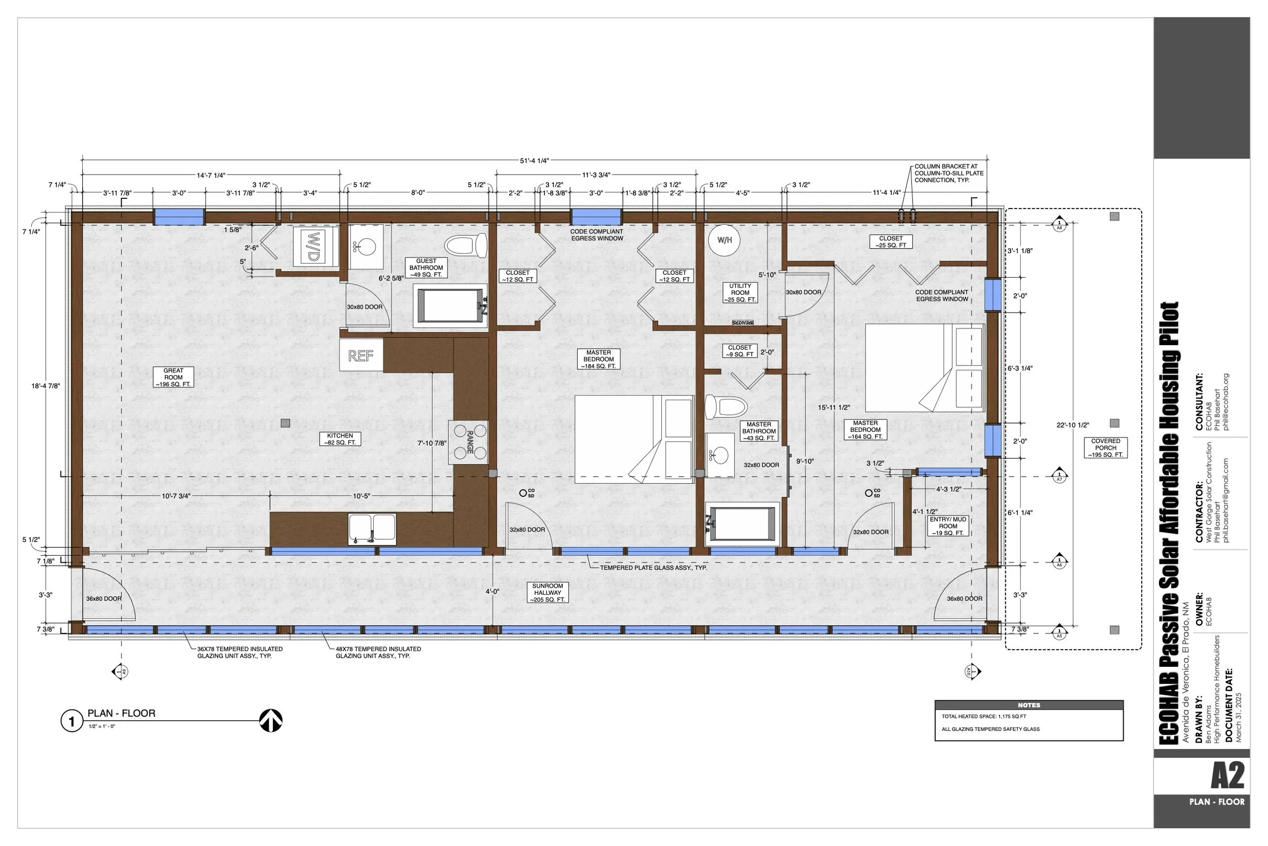
• Home Design: 1,200 sq/ft | 2-3 Bed / 2 Bath | Passive solar | Proven design

(built in Valdez, NM)

• Timeline: 2 years total: 6 months per home, starting April, 2026

• Sale Price Income Limit: At or below 150% Area Median Income (AMI)

• Ownership Terms: Priority to long-term Taos County residents with

demonstrated community involvement, low-income verified, first-time buyers; soft

second mortgage to protect ECOHAB's project objective while preserving

homeowner equity

Unique Value Proposition

• Ecological, cost-efficient design that lowers long-term costs

• Transparent budgeting and construction process

• Builds local skills, resilience, and community equity

• Equity-protected homeownership model

• Educational workshops and volunteer opportunities

Statement of Need

The Problem

Our team has lived, worked and raised our children in Taos county. In the last five years it has become apparent that there is a housing crisis in our beloved county. We have seen the cost of housing increase while employment opportunities and wages have stayed typically low. Our children, and the children of generational local families, cannot afford to own homes in Taos county and end up needing to leave the area to pursue the dream of owning property and building equity toward financial stability. Even doctors, educators, bank tellers, and other professionals are unable to find and afford a house in Taos, causing these essential workers to relocate to other cities. This phenomena needs to be addressed to maintain our local culture and social stability. Taos County—and much of the U.S.—faces a severe housing crisis. Affordable, sustainable homeownership is inaccessible for many low-income, long-term community members.

Our Solution

ECOHAB plans to build sustainable, affordable homes using passive solar design and adaptive construction. These homes will lower utility costs and offer below-market ownership options to qualifying residents. We aim for this project to be the first of many while inspiring other locations with adapted applications.

Project Details

Overview

Located on Avenida De Veronica, we have purchased a five-acre lot in El Prado, NM that is subdivided into four plots. Each of the four plots range from 1.06 - 1.36 acres. We are building a 1,200 sq/ft (2-3 bed/2 bath) house on each plot. Construction will begin with a single house, built start to finish, before moving on to the remaining three. The passive solar design of the homes will help reduce monthly heating, cooling, and electrical costs of the occupants. Our design has already been built for a client in Valdez, NM on a similar budget with documentation of costs and timeline. Each house will take six months to complete and will be sold at or below 150% AMI. We plan to begin construction of the first house April, 2026 and already have the building permit. Before constructing the first home, we are working on infrastructure such as creating a driveway and installing a shared well. A two year goal is set in place for the completion of all four houses starting April, 2026. We are approved for a construction loan and will have infrastructure support from Housing NM’s Innovation Fund.

Ownership Terms

Our target buyers are first time home buyers to people who have a history in Taos of being positive community members and qualify as a low-income household. A soft second mortgage will be in place upon sale to protect ECOHAB's objective while being considerate of the importance of the buyers having equity in their homeownership. We are partnered with Taos Housing Partnership to manage the buyer application process.

If you are an interested buyer, please contact lisa@taoshousingpartnership.org to take the first step towards affordable homeownership.

Education & Engagement

During each six month period of construction, ECOHAB will host three workshops, one week per workshop. Each workshop will coincide with different phases of the construction process and will consist of classes and hands-on learning/building. The workshop will be free for Taos County residents and cost $300 per workshop for non-residents.

Volunteer

Starting April 27th, we will be seeking volunteers to help with construction. No prior experience necessary!

Seeking Donated Building Materials

We need your help with purchasing building materials. If you have certified quality building materials (including appliances and fixtures) or are willing to purchase materials from our list, please contact phil@ecohab.org.

If you are feeling extra generous, we are seeking someone to sponsor a solar electric system and rainwater catchment system to give these homes an extra element of sustainability and autonomy.

Want to contribute but keep things simple? We could use all the financial support we can get. Every dollar counts.

M i l e s t o n e s

• Land Acquired: Complete

• Design: Complete + tested

• Permit: Complete/approved for first home and driveway

• Construction loan: approved

• House 1 Groundbreaking: [April/2026]

• First Sale Target: [October/2026]

• Full Build-Out Completion: [April/2028, ~2 years post-start]

Home #1 Floor Plan